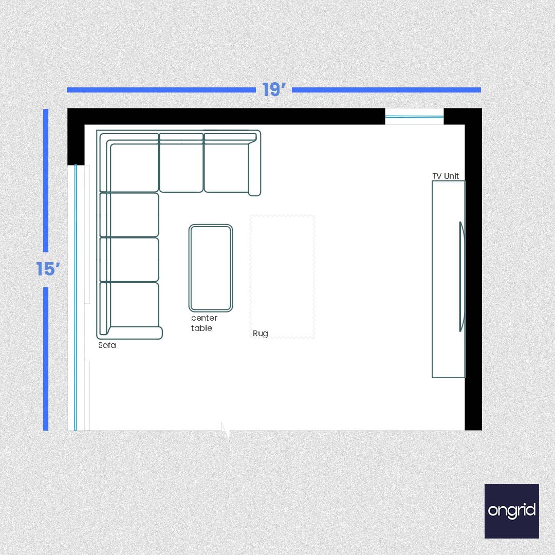
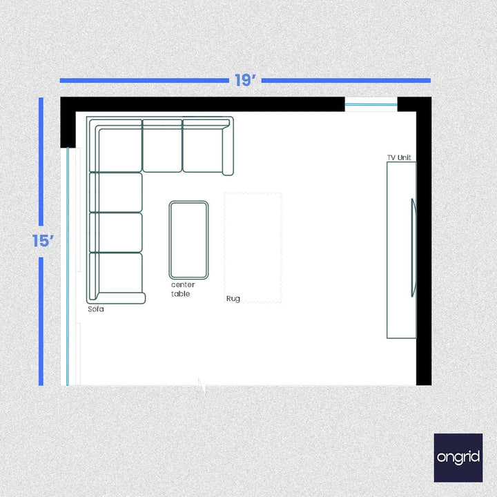
तुमच्या 19x15 लिव्हिंग रूमसाठी किमान डिझाइन कल्पना एक्सप्लोर करा. Ongrid Design सह किफायतशीर आणि टिकाऊ अशी शांत, गोंधळ-मुक्त जागा तयार करा.
| डिझाइन हायलाइट्स | |
| खोलीचा आकार | 19'x15' |
| फर्निचर | सोफा, सेंटर टेबल आणि टीव्ही युनिट |
| भिंत वैशिष्ट्ये | मातीच्या दिसण्यासाठी काँक्रीटच्या उघड्या भिंती |
| प्रकाशयोजना | एकत्रित छतावरील दिवे |
| स्टोरेज वैशिष्ट्ये | |
| शैली | आधुनिकतावादी किंवा ठराविक पारंपारिक स्वरूप न देता नैसर्गिक फिनिश आणि रंग वेगवेगळ्या प्रकारे वापरले जाऊ शकतात ही कल्पना व्यक्त करण्यासाठी डिझाइन केलेले. |
| फ्लोअरिंग |
संगमरवरी फ्लोअरिंग |
द्वारे विश्वस्त
तुम्हालाही आवडेल
ऑन्ग्रिड यासह कार्य करते
आम्ही प्रत्येक खोलीसाठी संपूर्ण डिझाइन सपोर्ट देतो, ज्याची किंमत ७००० रुपये प्रति खोली (१५० चौरस फूट* पर्यंत) पासून सुरू होते. तुमच्या तज्ञांशी बोला.

