या किचन डिझाइनसह तुमच्या घरात अडाणी मोहिनीचा स्पर्श आणा. त्याच्या उबदार टोन आणि नैसर्गिक सामग्रीसह, हे डिझाइन आरामदायक आणि स्वागतार्ह वातावरण तयार करते.
| डिझाइन हायलाइट्स | |
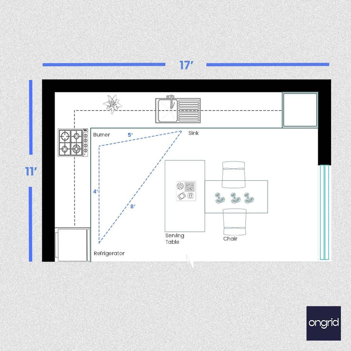
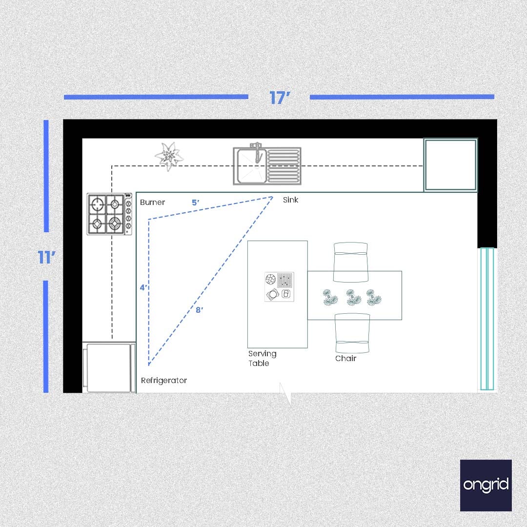
| खोलीचा आकार | 17'x11' |
| फर्निचर | भिंत कॅबिनेट आणि उंच युनिट |
| काउंटर |
एल-आकार |
| प्रकाशयोजना | छतावरील दिवे |
| स्टोरेज वैशिष्ट्ये | वॉल कॅबिनेट आणि उंच युनिट |
| शैली | पेस्टल रंग शांतता आणण्यासाठी वापरला जातो |
| फ्लोअरिंग |
सिरेमिक टाइल फ्लोअरिंग |
तुम्हालाही आवडेल
Looking for an Online Personalised Design Approach ? Fill the form below and we will be in touch.
We offer complete design support for every room, with a cost-effective pricing starting at Rs. 6999/ room (up to 150 sqft*). Speak to your expert
Customers preferred brands
अधिक डिझाइन्स
सर्व पहाआमच्या स्मार्ट होम बिल्डर्सच्या कुटुंबात सामील व्हा
नुकतेच पाहिलेले
तुमची जागा बदलण्यासाठी तयार आहात?
किचन डिझाईन्स
स्वयंपाकघर खोलीपेक्षा जास्त आहे; तो एक हृदयाचा ठोका आहे. प्रत्येक घरात, जिथे सकाळची सुरुवात होते, जिथे मित्र एकत्र येतात आणि जिथे चव आठवणी बनतात. तुमचे स्वयंपाकघर समजून घेणे म्हणजे तुमची जीवनशैली समजून घेणे. Ongrid Design च्या होम इंटिरियर डिझाइन सेवेसह , आम्ही डिझाइनला अभयारण्य बनवतो. चला एकत्र एक्सप्लोर करूया.
कमी किमतीच्या साध्या डिझाईन्स: एक घरगुती स्पर्श
साधे म्हणजे सामान्य असा नाही. आमच्या कमी किमतीच्या साध्या डिझाईन्स काळजीपूर्वक तयार केल्या आहेत, एक उबदार आणि स्वागतार्ह जागा प्रदान करतात जिथे कुटुंबे एकत्र येतात. इंटीरियर डिझाइनचा आमच्यासाठी काय अर्थ आहे आणि आम्ही कनेक्शनला कसे महत्त्व देतो आणि दररोजच्या क्षणांची कदर करतो याबद्दल अधिक शोधा.
लहान मॉड्यूलर किचन डिझाइन: लवचिकतेचे भविष्य
जागा महत्त्वाची आहे, परंतु लवचिकता देखील आहे. आमचे छोटे मॉड्यूलर किचन डिझाईन्स आधुनिक राहणीमानासाठी डायनॅमिक सोल्यूशन्स देतात. ऑनलाइन इंटिरियर डिझाइनचा पर्याय म्हणून उदयास आला आहे आणि हे डिझाइन तुमच्याशी कसे जुळवून घेते याबद्दल जाणून घ्या, तुमची अनोखी जीवनशैली साजरी करा.
एल शेप मॉड्युलर किचन डिझाईन: एक क्लासिक रीइमेज्ड
आमच्या एल शेप मॉड्युलर किचन डिझाइनमध्ये परंपरा नावीन्यपूर्ण आहे. जागा आणि कार्यक्षमता वाढवणाऱ्या लेआउटसह, इंटीरियर डिझाइनकडे आमचा दृष्टीकोन आणि ते फक्त स्वयंपाकघरापेक्षा अधिक कसे आहे ते शोधा; ही एक अशी जागा आहे जिथे जीवनातील पाककृती परिपूर्ण आहेत.
लक्झरी मॉडर्न डिझाईन्स किचन डिझाईन: प्रत्येक तपशीलात सुरेखता
ऐश्वर्य हे ऐश्वर्यापेक्षा जास्त आहे; हे स्वतःचे विधान आहे. आमच्या लक्झरी आधुनिक डिझाईन्स त्यांच्यासाठी तयार केल्या आहेत जे प्रत्येक तपशीलात असाधारण शोध घेतात. आमच्या सर्जनशील किचन टाइलच्या डिझाइनमध्ये जा आणि डिझाइनची इच्छा कुठे पूर्ण होते ते पहा.
डिझाइन विहंगावलोकन
स्वयंपाकघर ते सेवा देत असलेल्या लोकांइतकेच वैविध्यपूर्ण आहेत. लक्झरीच्या सुरेखतेपासून साधेपणाच्या उबदारतेपर्यंत, आम्ही वेगवेगळ्या हृदयांना आणि घरांना प्रतिध्वनित करणार्या डिझाइन्समधून प्रवास केला आहे. Ongrid Design च्या सर्वसमावेशक इंटीरियर डिझाइन सेवेसह , हे केवळ एका सुंदर स्वयंपाकघरापुरतेच नाही; हे एका जागेबद्दल आहे जे तुम्हाला समजते. चला तुमचे स्वयंपाकघर फक्त एक खोली बनवू नका, तर तुमचे प्रतिबिंब बनवूया.
तुमच्या बेडरूममध्ये वैयक्तिक माघार घेण्यास तयार आहात? आमच्या इंटीरियर डिझाइन सेवेचा लाभ घ्या आज